Bài học này mô tả làm thế nào để tạo và chỉnh sửa mức cao độ trong một mô hình công trình. Bạn bắt đầu bài học bằng cách học về mức cao độ và cách sử dụng chúng. Sau đó bạn tìm hiểu những bước tạo, chỉnh sửa mức cao độ và thực hành. Bài học kết thúc với một bài tập về tạo và chỉnh sửa mức cao độ.
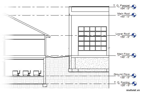
Bạn sử dụng mức cao độ để định nghĩa chiều cao theo phương đứng hoặc là một tầng trong một tòa nhà. Trong Revit Architecture, mức cao độ có tác dụng như là một mặt phẳng tham chiếu theo phương ngang để đặt những phần tử của công trình như là trường mái và sàn. Với mức cao độ, bạn xác định và điều chỉnh cách đặt phần tử theo phương đứng trong một mô hình xây dựng. Minh họa dưới đây chỉ ra những mức cao độ khác nhau trong khung nhìn mặt cắt của mô hình xây dựng.
Sau khi hoàn thành bài học, bạn sẽ có thể:
- Hiểu mức cao độ và cách dùng của chúng
- Biết được những bước tạo và chỉnh sửa mức cao độ.
- Nắm vững bài thực hành tạo và chỉnh sửa mức cao độ.
- Tạo và chỉnh sửa mức cao độ.

Không có nhận xét nào:
Đăng nhận xét